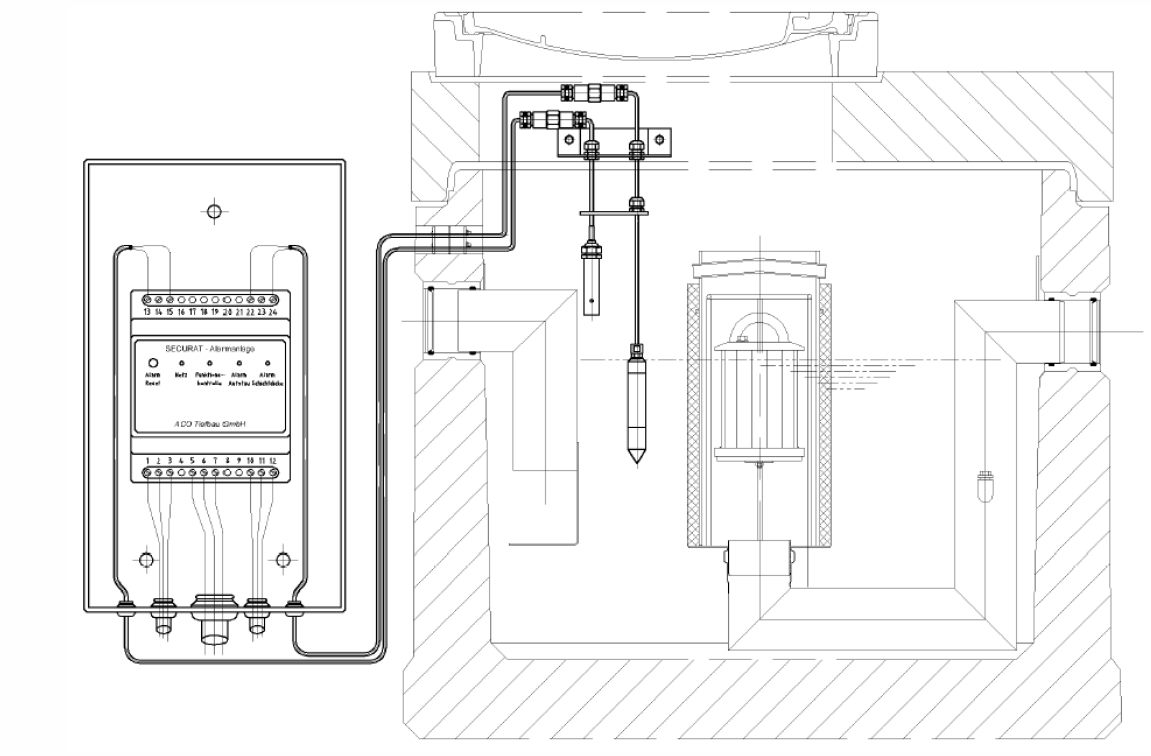
Olie/niveau alarmen
RIOTECH levert hoogwaardige producten die aan de hoogste kwaliteitsnormen voldoen, zowel voor afscheidings- als afwateringstechniek.
Persoonlijke aanvraag
Wij zijn gaarne bereid om in een persoonlijk onderhoud uw aanvraag te bespreken en een vrijblijvend voorstel te doen, passend op uw specifieke situatie.

0180 - 654266












